Trang
Trang chủ
Tiến độ thanh toán
Tiện ích thông minh
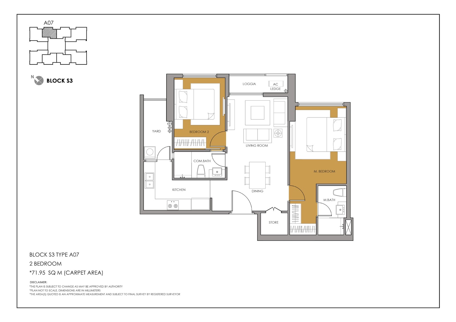
Mặt bằng S3
Liên hệ
Mặt bằng S3
MẶT BẰNG S3 TỪ TẦNG 6 ĐẾN TẦNG 23
___________________________________________________________________________________
MẶT BẰNG S3 TỪ TẦNG 24 ĐẾN 40
Trang chủ
Đăng ký:
Nhận xét (Atom)